Soluciones de diseño, gestión, administración y desarrollo de proyectos.
Instagram feed
+54 01145928421
INFO@ESTUDIOLAESPERANZA.COM
Home
Estudio
Obras
Casas
Arquitectura Comercial
Proyectos
Etapas
Contacto
FAQ
Home
Estudio
Obras
Casas
Arquitectura Comercial
Proyectos
Etapas
Contacto
FAQ
Home
Estudio
Obras
Casas
Arquitectura Comercial
Proyectos
Etapas
Contacto
FAQ
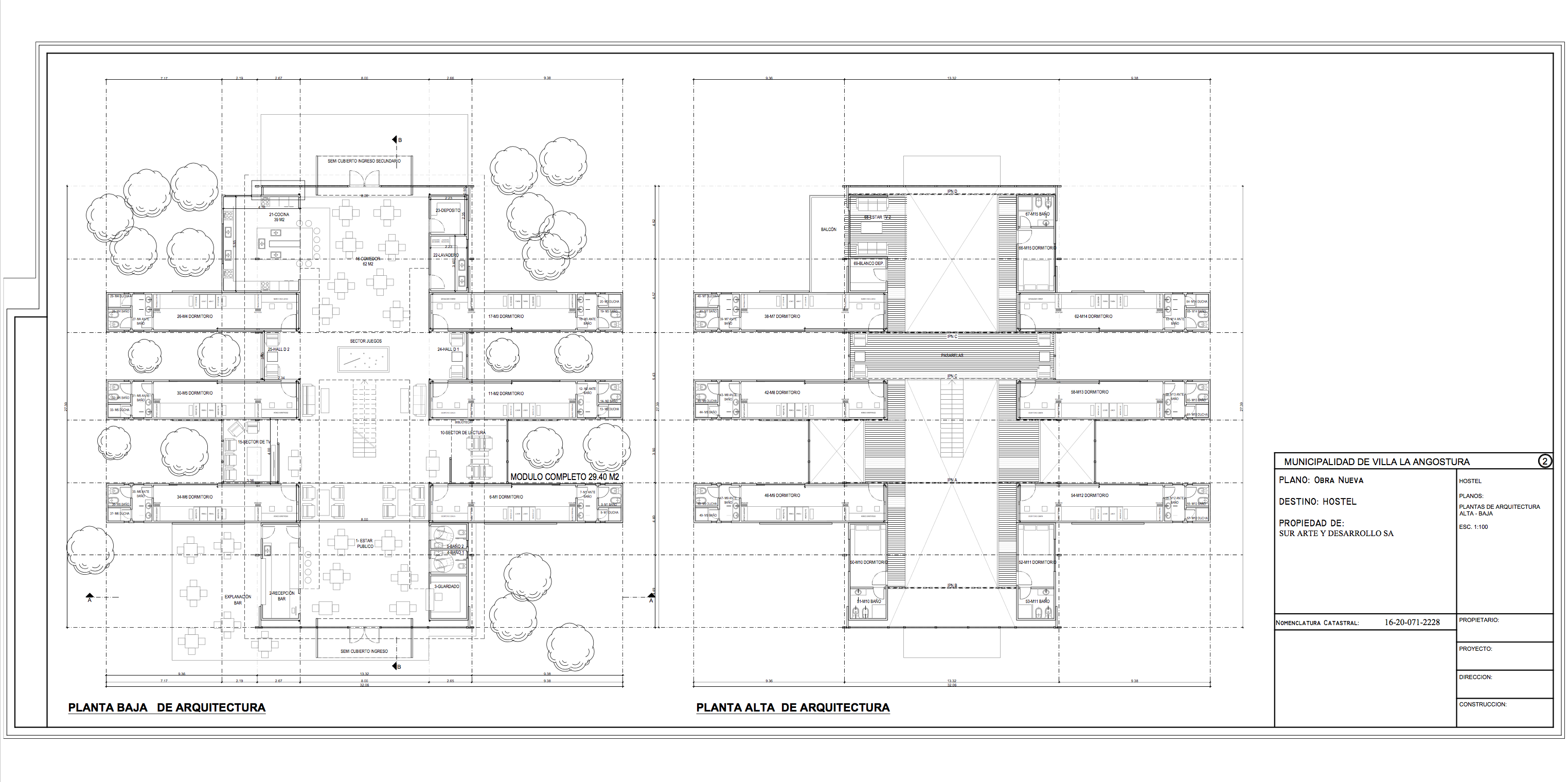
Hostel del Mercado
El Mercado - 800 m2
Category:
El Mercado - 800 m2
TAGS:
home
Previous
Next